Isabella Green
Major
Interior Architecture
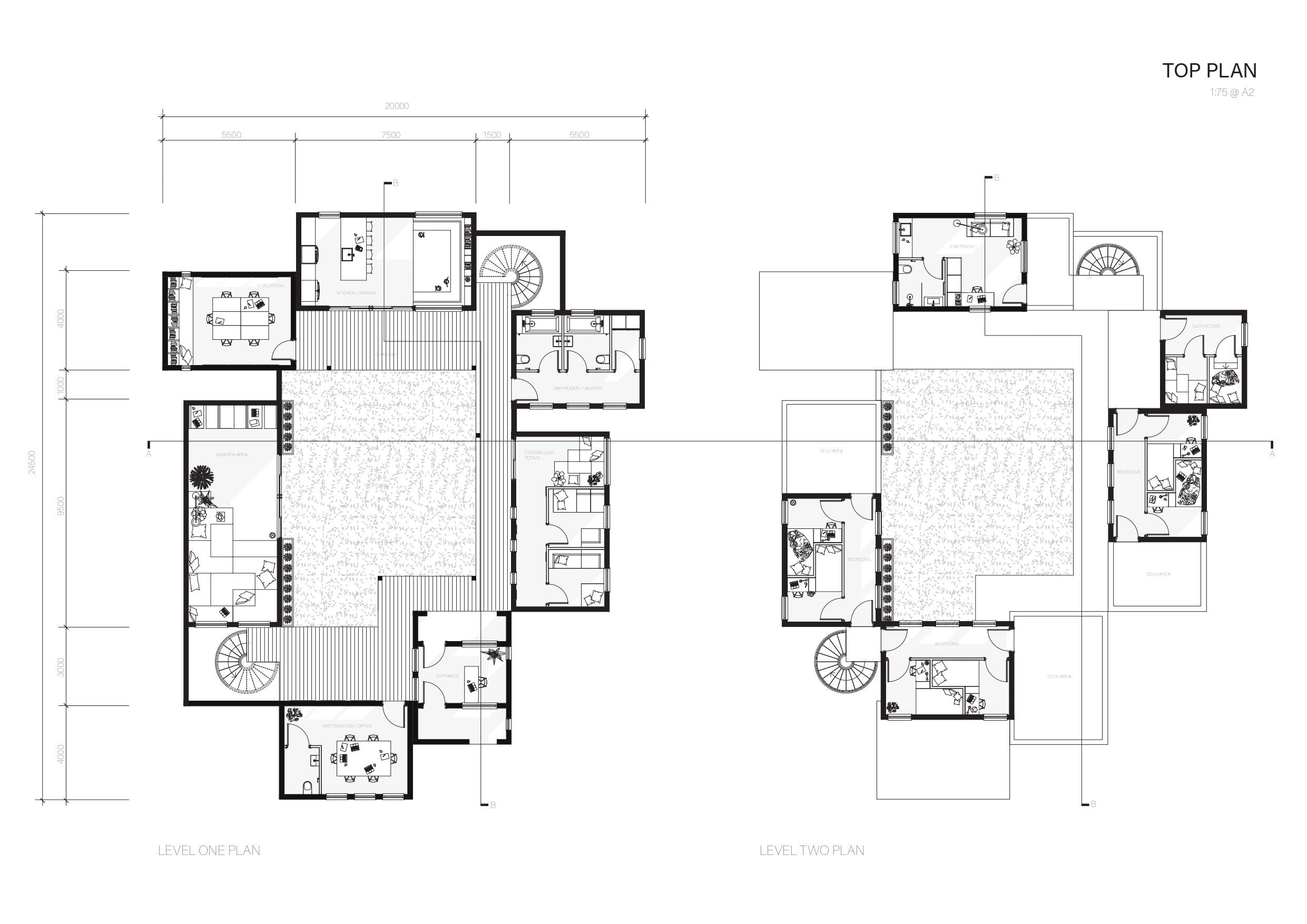
Youth Justice Centre
Overview:
Exploring the need for a youth justice residence that nurtures growth and learning for its occupancy, whist creating spaces that feel like home and provides a sense of security for the residences.
Student:
Isabella Green
Course:
INTA312: Interior Architecture Design Integration / Te Whakarakei me te Whakaniko
Published:
2021




